S08
S08 Glamping Safari Tent with Panoramic Glass Front & Front Walls
🏙️ Architectural Glass Design
• Full glass front door & walls for a clean, high-end aesthetic
• Optional frosted glass or curtains for privacy
🪵 Upgraded Structural Stability
• Traditional side ropes replaced with solid pinewood poles for enhanced durability
• Rust-resistant steel connectors ensure long-term stability
🌿 Nature-Immersive Terrace Experience
• Added side terrace creates a casual outdoor dining or leisure area
• Enhances the natural living experience for guests
🌀 All-Weather Performance
• Operational temperature range from -20°C to +50°C
• Roof load capacity of 15 kg/m² with wind resistance up to Beaufort Scale 10
💎 Premium Hospitality-Level Interiors
• Complete set of solid wood furniture, including bed, sofa, tables, and more
• Independent bathroom with shower, toilet, sink, and air conditioning
• High-performance, weather-resistant fabrics for year-round use
🌐 Versatile Applications
• Ideal for luxury glamping, reception halls, multi-functional venues, and eco resorts
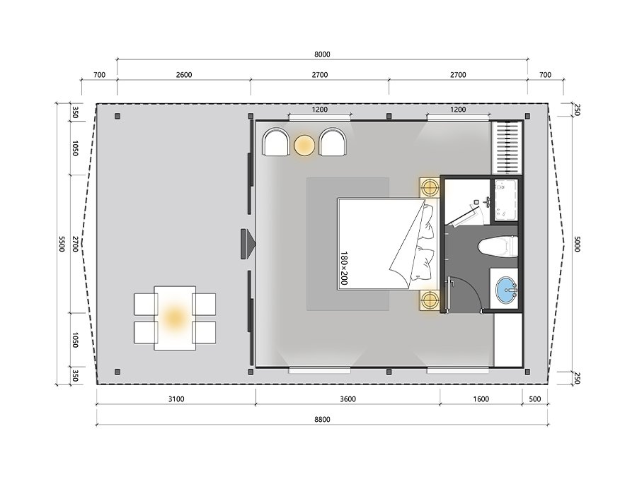
Size
📐 Dimensions
| Specification | Measurement |
|---|---|
| Projected Area | 51.4m² (553 ft²) |
| External Size | 5m × 8m = 40m² (430 ft²) |
| Indoor Area | 4.8m × 5.3m = 25m² (269 ft²) |
| Veranda Area | 4.8m × 2.6m ≈ 13m² (140 ft²) |
| External Height | 4m (top) / 2.2m (side) |
| Internal Height | 3.7m (top) / 2.1m (side) |
⚙️ Technical Performance
| Parameter | Specification |
|---|---|
| Wind Resistance | Beaufort Scale 10 (89–102 km/h) |
| Roof Load Capacity | 15 kg/m² (3.1 lb/ft²) |
| Operating Temp | -20°C to +50°C (-4°F to 122°F) |
| Design Lifespan | 10 Years |
🧵 Materials
| Component | Outer Roof | Walls (Hybrid System) |
|---|---|---|
| Material | PVC-Coated Fabric (850g/m²) | Oxford Fabric + Double-Glazed Glass |
| Waterproof Rating | 8000 mm Hydrostatic Head | 3000 mm Hydrostatic Head |
| Lightfastness | 7 (Blue Wool Scale) | 5 (Blue Wool Scale) |
| Features | Fire / Mould / UV / Tear Resistant | Fire / Mould / UV Resistant • Self-Cleaning |
| Colors | Khaki + Custom Options | Beige + Custom Options |
🧱 Construction
| Structural Element | Specification |
|---|---|
| Frame | Solid Pinewood (100×80mm) |
| Connectors | Anti-Corrosion Steel |
| Assembly Method | Self-Tapping Screws |
🚪 Openings & Features
| Glass Elements | Traditional Openings |
|---|---|
| • Sliding Glass Door (2.4m × 2.1m) | • 4 × Zipper Windows (1.2m × 0.8m) |
| • Full-Length Glass Walls | • Clear PVC + Oxford Covers |
| • Thermal Insulated Glazing | • Integrated Insect Screens |
🛋️ Premium Amenities (Optional)
| Architectural Upgrades | Luxury Furnishings |
|---|---|
| • Glass Wall System | • 180×200cm king-size bed |
| • Solid Wood Platform | • 160×85cm sofa |
| • Full Bathroom Package | • Dining Table + 4 Chairs |
| • Integrated Lighting | • TV Stand + Occasional Chair |
| • Side Terrace | • 2 Nightstands + Wardrobe + Cupboard |
















